
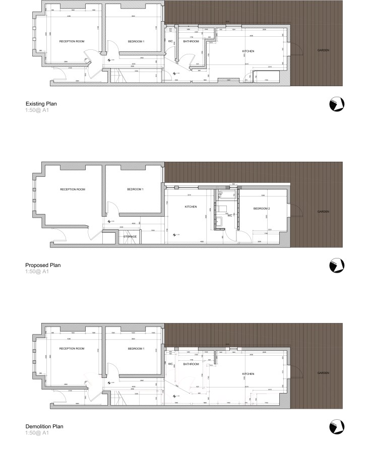
A study to improve a large 1 bedroom flat into a 2 bedroom flat offering a new modern kitchen, new bathroom facilities whilst retaining the historic elements of the house.




PTA Design Research Studio

A study to improve a large 1 bedroom flat into a 2 bedroom flat offering a new modern kitchen, new bathroom facilities whilst retaining the historic elements of the house.



