
Concept study for a new Sports Science Centre for Brunel University
Facilities to include the below:
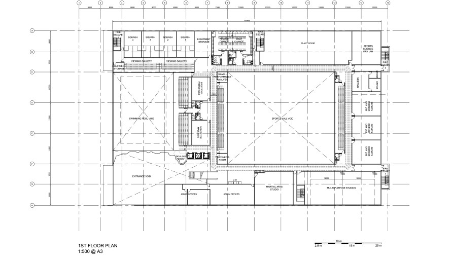
An 8 or 12 badminton court multi-purpose sports hall with seating for 1500 spectators. Retractable seating for 1000 permanent tiered seating for 500. Court to include international standard basketball. Sports Hall Sub-dividable 8 or 12 court county standard hall for basketball, netball, badminton, volleyball, gymnastics, indoor hockey, cricket nets, handball, goal-ball, rhythmic gymnastics and regional level trampolining. Dedicated store. First floor viewing windows.
•8 lane, 25m Swimming pool with 250 fixed spectator seating. Within the swimming pool area to include: spa, sauna, steam room massage room and associated lounge. With moveable floor for recreational, training & short course competition use, with raising floor and portable hoist for disabled and elderly access.
•4 x glass backed squash courts with spectator viewing for 40 per court
•Martial arts room / Dojo
•Enhanced climbing wall with boulder room
•Game + performance analysis facilities
•First Aid Room – Accessed directly off the pool.
•Multi-purpose studio(s) to provide facilities for yoga, circuits, spinning, associated offices.
•140 station Fitness gym including weights room and other support facilities. One large space that can ideally be zoned.
•Administrative offices. Offices for centre management team.
•Small retail /merchandise area
•Cafeteria areas – 80 capacity accessed directly off reception / entry and exit. Kitchen Large kitchen serving the bar and function rooms.




* All the material in this page is personal design work on behalf of P+W Architects.